Zurück Sie sind hier: Online-Sammlung > Sammlungsobjekte > 224-004-010
Tuscan House and Laurentian House
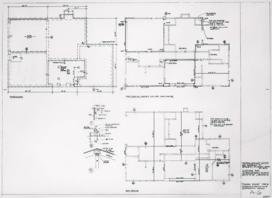
Thomas Gordon Smith Architects, Thomas Gordon Smith Tuscan House and Laurentian House
- Inventarnummer 224-004-010
- Beteiligte: Thomas Gordon Smith Architects , Thomas Gordon Smith
- Beschreibung Konstruktionsplan: Fundamente+ Konstruktionsdetails - Tuskisches Haus
- Maße76 x 106 cm (Blattmaß)
- Material / Technik Plankopie, Transparentfolie
- Objekttyp Kopie
- CreditlineDAM und Marika Wilson Smith
- Datierung
1979
- Ort Livermore, (CA) USA
- Beteiligte
Thomas Gordon Smith Architects
Thomas Gordon Smith
1981 Tuscan House and Laurentian House Thomas Gordon Smith Architects, Thomas Gordon Smith
1981 Tuscan House and Laurentian House Thomas Gordon Smith Architects, Thomas Gordon Smith
1981 Tuscan House and Laurentian House Thomas Gordon Smith Architects, Thomas Gordon Smith
1981 Tuscan House and Laurentian House Thomas Gordon Smith Architects, Thomas Gordon Smith
1979 Tuscan House and Laurentian House Thomas Gordon Smith Architects, Thomas Gordon Smith
1979 Tuscan House and Laurentian House Thomas Gordon Smith Architects, Thomas Gordon Smith
1979 Tuscan House and Laurentian House Thomas Gordon Smith Architects, Thomas Gordon Smith
1979 Tuscan House and Laurentian House Thomas Gordon Smith Architects, Thomas Gordon Smith
1979 Tuscan House and Laurentian House Thomas Gordon Smith Architects, Thomas Gordon Smith
1979 Tuscan House and Laurentian House Thomas Gordon Smith Architects, Thomas Gordon Smith
1979 Tuscan House and Laurentian House Thomas Gordon Smith Architects, Thomas Gordon Smith
1979 Tuscan House and Laurentian House Thomas Gordon Smith Architects, Thomas Gordon Smith
1979 Das "Tuskische" und das "Laurentianische" Haus Thomas Gordon Smith Architects, Thomas Gordon Smith